Survey
What it is.
Boundaries Within
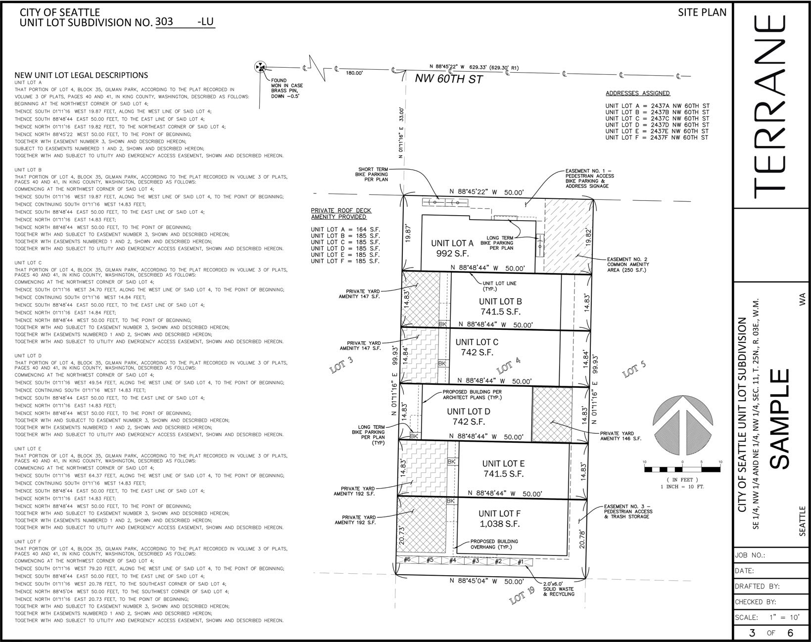
A unit lot subdivision defines boundary lines and uses areas within a larger “parent” lot to establish individual sellable lots. This type of survey is primarily used when multiple buildings are permitted to fit on a single original lot (e.g., townhouses or row houses). The individual unit lots created reflects the structure placement, amenity areas, and access and utility easement locations per the approved building permit(s). They are not separately developable lots, but they are capable of being sold individually.
 
    